Технологическое проектирование ресторанов
Одной из важнейших составляющих в проектировании предприятий общественного питания, кроме дизайн-проекта, является проект размещения технологического оборудования (Рабочий проект. Технологическая часть).
Состав Технологического проекта
- Пояснительная записка
- План размещения технологического оборудования
- Спецификация оборудования
- План привязки оборудования к электротехническим системам
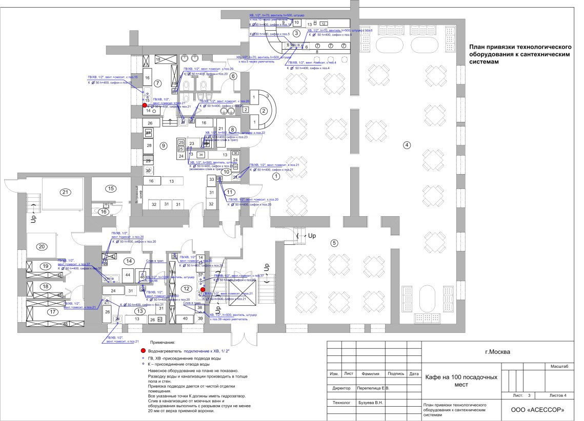
- План привязки оборудования к сантехническим системам
- План привязки вентиляционных зонтов
Технологический проект, так же как и проект вентиляции, а также проект переустройства (перепланировки/переоборудования) помещения с техническим заключением о его возможности, подлежит обязательному согласованию в Роспотребнадзоре (СЭС) и не только. По ресторанам, строящимся в Москве мы предоставляем услуги по получению разрешительной документации, необходимой для открытия и функционирования предприятий общественного питания.
Почему проекты для предприятий общественного питания нужно заказывать в "РЕСТКОН"?
- РЕСТКОН - СПЕЦИАЛИЗИРУЕТСЯ на предприятиях общественного питания.
- В отличие от обычных архитектурных бюро, наши специалисты досконально знают ресторанный бизнес, современное оборудование и проектируют на основе оборудования, мебели, материалов, специально подобранных для вашего ресторана.
- В отличие от фирм-поставщиков оборудования, нам не нужно предлагать вам в проекте побольше оборудования или подороже - мы подбираем его исходя из принципа необходимости и достаточности.
- У нас в проектировании принимают участие профессионалы в управлении ресторанным бизнесом, а это значит, что распределение помещений в проекте будет выполнено оптимально с точки зрения практики, а не только в соответствии с нормативами.
- Если у вас уже есть на примете поставщик, у которого вы хотите приобрести оборудование, наши специалисты сделают для вас проект на основе ассортимента оборудования этого поставщика.
Наша компания сделает для вашего ресторана технологический проект, подберет и поставит оборудование исходя из реальных потребностей вашего бизнеса. Это особенно важно, поскольку разобраться в существующем многообразии оборудования, представленном на рынке без специалиста крайне сложно. И, поэтому есть риск купить оборудование избыточной или недостаточной производительности, купить лишнее или не нужное. При этом на необходимое потом может не хватить места на кухне или просто денег. Вы можете банально переплатить или купить ненадежное оборудование, которое быстро выйдет из строя.
В отдельных случаях оптимизация состава оборудования поможет сэкономить до 50% средств, которые вы готовы на это оборудование потратить. Очевидно, что на эти деньги можно сотворить немало добрых, и, что самое главное - действительно полезных дел для вашего ресторана.
Работая с нами, вы получите именно то оборудование, которое необходимо и достаточно для организации нормальной работы вашего ресторана, кафе или фаст-фуда.
Также мы выполняем проектные работы для магазинов и салонов красоты, для торговых и бизнес-центров.
О стоимости, условиях и сроках проектирования спрашивайте по телефонам: +7 (925) 507 38 25
Наши проекты
Отправить заявку
Ссылки по теме:








































